Строить легче с проектом от "АЛЬФАПЛАН" потому, что у нас подробные строительные чертежи. Смотрите ВИДЕО, читайте на странице Состав проекта дома.
Готовые проекты: 1. не предназначены для строительства в СЕЙСМИЧЕСКИ АКТИВНЫХ РАЙОНАХ, а фундаменты - в условиях ВЕЧНОЙ МЕРЗЛОТЫ, 2. проекты домов требуют Привязки к конкретному участку строительства (внизу страницы).
.
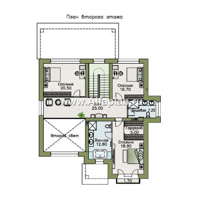
| Общая площадь дома | 243.3 м² |
|---|
| Тип фундамента | монолитная ж/б плита | |
|---|---|---|
| Тип наружных стен | кирпич/газо(пено)бетонные блоки | |
| Тип внутренних несущих стен | кирпич | |
| Тип перекрытий | монолитная ж/б плита над 1-ым эт, по деревянным балкам над 2-ым | |
| Тип кровли | натуральная черепица/битумная черепица | |
| Наружная отделка стен | лицевой кирпич, декоративная штукатурка | |
| Наружная отделка цоколя | облицовочный камень | |
| Гараж | Без гаража | |
| Ширина | 14 м | |
| Длина | 17 м | |
| Утеплитель | минеральная вата | |
| Материал окон | из ПВХ профилей/Защитные роллеты ALUTECH (реклама: ООО "Алютех-М") |
Внесение изменений в проекты
ПодробнееИзменение фундамента, перекрытий, теплые полы
ПодробнееРазбивочный план, благоустройство, озеленение
ПодробнееРазработка проекта по заданию Закачика
ПодробнееКорректировка фасада по желаниям заказчика
Подробнее
Комментарии 0